Wintersport in Chalet Hirschblick

Donnersbachwald | Riesneralm

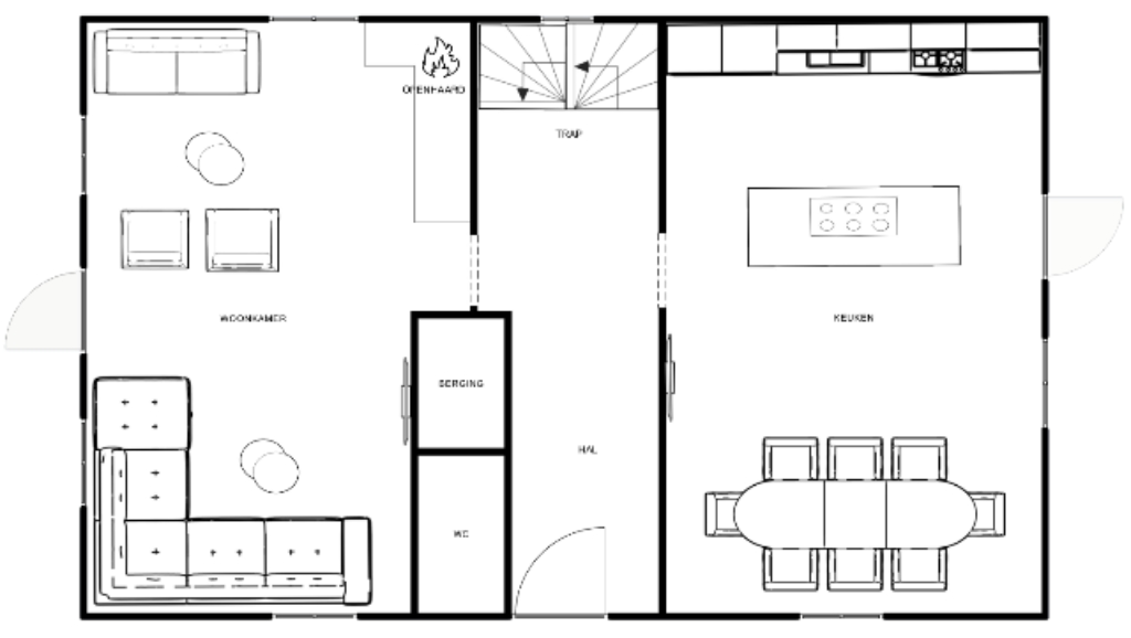
Begane grond

woonkamer - openhaard - woonkeuken

Via de voordeur loop je de sfeervolle hal in waar je aan de linkerkant de WC en berging aantreft. Via de moderne zwarte taatsdeur betreed je aan de linkerkant de woonkamer met grote loungebank en sfeervolle openhaard. Aan de wand is een Smart TV geplaatst voorzien van een Sonos muzieksysteem. Tevens vind je hier een slaapbank van het bekende Oostenrijkse merk Joka.
Aan de andere kant van de hal loop je via de zwarte taatsdeur naar de grote woonkeuken. De keuken is voorzien van koelkast, vaatwasser, magnetron en aparte oven. Op het kookeiland met barretje is de inductiekookplaat ingebouwd. Aan de andere kant van de keuken is een grote tafel geplaatst met 10 zitplaatsen. In de keuken is een Smart TV aan de wand geplaatst.
De gehele begane grond is voorzien van vloerverwarming.

Plattegrond begane grond Chalet Hirschblick

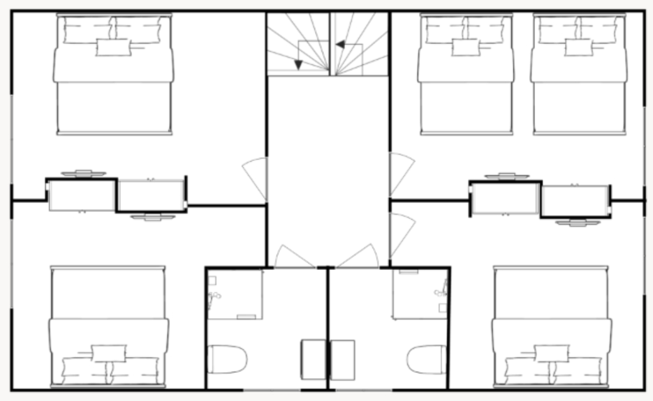
Verdieping

slaapkamers - badkamers - wc's

De bovenverdieping is voorzien van vier slaapkamers. Op drie slaapkamers staan boxsprings van 180x200cm en op één slaapkamer staan twee boxsprings van 160x200cm.
Iedere slaapkamer heeft een kledingkast en is voorzien van een Smart TV. De TV zenders dient u zelf via een app op je mobiel te streamen naar de TV. De slaapkamers worden verwarmd door middel van infrarood panelen.
De twee badkamers zijn voorzien van een royale douche van 100x100cm, een toilet en een wastafel. De badkamer is voorzien van vloerverwarming.

Plattegrond verdieping Chalet Hirschblick

Kelder

sauna - ligbad - skiruimte - wasmachine - auto

De onderste verdieping van het chalet is toegankelijk via een (automatische) garagedeur waarachter je de auto kunt parkeren. In de kelder vind je een ruimte waarin je skies en skischoenen kunt bergen, tevens is hier een wastafel aanwezig. De schoenen en handschoenen kan je hier drogen aan de schoenendroger.
De achterste ruimte is de wellnessruimte en is voorzien van een dubbele douche, sauna, dubbele wastafels en een heerlijk ligbad. Naast de wellness is een ruimte waarin een wasmachine en wasdroger staat.
Via de trap kan je binnendoor naar de begane grond.

Plattegrond kelderChalet Hirschblick